Мы используем куки-файлы. Соглашение об использовании
Площадь1 018 м²
Этаж1 из 1
Выс. потолков6.5 м.
ПомещениеСвободно
Отчёт о привлекательности объектаУзнайте, насколько помещение и район подходят для вашего бизнеса
Что входит в отчёт
  • Охват населения
  • Пешеходный трафик
  • Автомобильный трафик
  • Средний бюджет семьи по району
  • Арендные ставки рядом
  • Точки притяжения
  • Конкуренты в радиусе 1 км
  • Рекомендации по выбору места для бизнеса
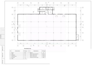
1099653. Предлагаем современный теплый склад общей площадью 1 018 кв.м. в Апрелевке. Преимущества: Удобная транспортная доступность 28 км от МКАД по Киевскому шоссе. Близость к ЦКАД и Новой Москве. Локация: Апрелевка, удобный подъезд с Киевского шоссе. Развитая транспортная инфраструктура. Близость к метро Саларьево. 1 этаж ОСЗ. Отапливаемое помещение. Центральные коммуникации: отопление, канализация. Бетонные полы класса В30 с защитным покрытием "Протексил". Возможность маневра фур и парковка на 30 мест, подходит для грузового транспорта. Ворота 2 шт. на уровне 0. Режим работы 24/7. Технические характеристики: Общая площадь: 1 018 кв.м. Складская площадь: 967,2 кв.м. Офисная часть: 20,6 кв.м. Подсобные помещения: 12,3 кв.м. Мезонин: 17,9 кв.м. Высота потолков: 4.1 6.5 м. Нагрузка на пол: 1,5 т/кв.м. Высота ворот: 3 м. Электрическая мощность: 200 кВт (оплата отдельно по счетчику). Для получения дополнительной информации и организации просмотра, пожалуйста, свяжитесь с нами.
lock

Войдите или зарегистрируйтесь
для просмотра информации

Просматривайте условия сделки и всю информацию об объекте
Сохраняйте фильтры в поиске и не вводите заново
Доступ к избранному с любого устройства
Неограниченное добавление в избранное
Позвоните автору
Вам ответят на все вопросы
Остались вопросы по объявлению?
Позвоните владельцу объявления и уточните необходимую информацию.
  • Инфраструктура
  • Похожие рядом
Помощь надёжных риелторов
Риелтор партнёр Циан поможет купить или продать любую недвижимость
220 000 000 ₽
2 912 855 $
2 491 998
Цена за метр
216 111 ₽
Налог
УСН
Агентство недвижимости
Документы проверены