Мы используем куки-файлы. Соглашение об использовании
Только на Циан
Общая площадь136 м²
Участок5 сот.
Материал домаГазобетонный блок
Этажей в доме2
Год постройки2025
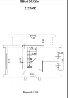
Предлагается новый, 2-х этажный дом премиального уровня. Можно спланировать 4 спальни. первый этаж: гостиная-кухня, просторный санузел с окном и есть возможность сделать еще спальню. второй этаж: три спал ни, большой санузел с окном, балкон. Материалы: Фундамент монолитный , по типу " перевернутая чаша" , утепленный пенополиестеролом, гидроизолирован. Выполнена отмостка и дренажная система по периметру отмостки. Стены ( тепловой контур): - премиальные Газобетонные блоки компании ytong , -Марка D-500 , -толщина стены 300 мм - утеплен по периметру теплового контура. Наружная отделка фасада : - клинкерная плитка премиального класса компании Каньон; - вентилируемая фасадная системы компании Каньен; - декоративные вставки выполнены из Древесно-полимерный композит (ДПК); - Доблрные элементы от компании ГрандЛайн Кровля : -КвикФальц от компании ГрандЛайн; -Мембраны пароизоляционные, супердифузиогные, ветрозащитные- от компании ГрандЛайн; Полный комплект кровельных материалов приобретён у компании ГрандЛайн. - перекрытие межэтажное - монолитное; - высота потолков 3.4 м; - лестница межэтажная монолитная; - Окна КBE; - все монтажные работы выполнены под контролем технического надзора; - коммуникации городские, заведены в дом; - Забор, парковка, навес на капитальном фундаменте; - в стоимость входит навес и хоз блок в едином стиле с домом. Лучшее место в Апрелевке, в 500 метрах лес и пруд, в шаговой доступности МЦД, школа и детский сад, сетевые магазины. Строим в Апрелевке с 2008 года. Собственник!
Позвоните автору
Вам ответят на все вопросы

О доме

Площадь

136 м²

Материал дома

Газобетонный блок

Состояние дома

Нужен ремонт

Количество этажей

2

Количество спален

3

Год постройки

2025

Об участке

Площадь

5 сот.

Категория земель

Земли населённых пунктов

Статус участка

Индивидуальное жилищное строительство

Коммуникации и удобства

Санузел

2 в доме

Канализация

Центральная

Водоснабжение

Центральное

Отопление

Центральное газовое

Электричество

Есть

Газ

Магистральный в доме или на участке

Дополнительно

Гараж

Спросите умного помощника
Получите экспертное мнение о жилье

Расположение

Подпишитесь на объявления в этой локации
Мы сообщим, как только поблизости появится что‑нибудь новенькое
Ипотечный калькулятор
  • 20.1%
  • 30%
  • 40%
  • 50%
лет
  • 10 лет
  • 20 лет
  • 30 лет
Загружаем предложения от застройщика и банков
Автор объявления
ID 81237296
  • Документы проверены
  • 4 года 1 месяц на ЦИАН
  • Хотите продать недвижимость?Разместите объявление на ЦианРазместить
    21 300 000 ₽
    Эксперт от ЦианаПомощь с поиском и сделкой
    Цена за метр
    156 618 ₽/м²
    Ипотека
    возможна
    Автор объявления
    ID 81237296
    Документы проверены